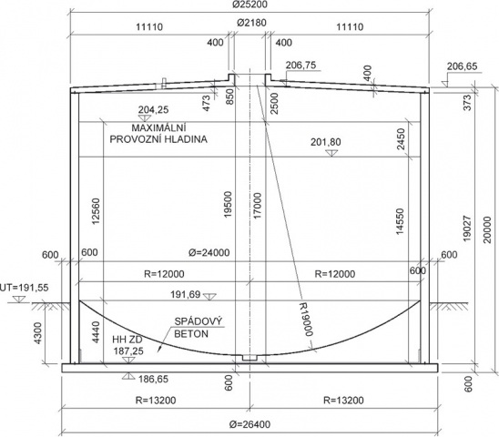
Stěna nádrže byla prováděna nepřetržitou betonáží posuvným bedněním a je dodatečně předpínaná, ve stěně nádrže jsou osazeny sedmilanové vodorovně vedené předpínací kabely. Zastřešení tvoří železobetonová kuželová plocha tloušťky 400 mm, styk stěny a stropní konstrukce je tuhý. Na vedlejším obrázku je zobrazen schématický svislý řez konstrukcí nádrže.
Nosná konstrukce vyhnívacích nádrží byla navržena v rámci dokumentace pro provedení stavby, kterou zpracovala firma Sweco Hydroprojekt a.s. Praha (1.2022 - Ing. Trnka). Tloušťka stěny 600 mm byla dána požadavkem stability konstrukce proti vztlakové síle při stoleté vodě.
Technologie posuvného bednění – popis
Ocelová konstrukce posuvného bednění je 1,20 m vysoká a je zavěšená na vzpěrných tyčích, obslužné plošiny na obou stranách tažené stěny jsou uloženy na ocelových konzolách.Posuv bednění je zajištěn pomocí hydraulického zařízení, svislost prováděné stěny je kontrolována pomocí svislého provažovače na osmi místech obvodu.Rychlost posunu bednění je 2 až 3 metry za 24 hodin.Betonáž konstrukce byla realizována stacionární věžovou pumpou, díky tomu byl zajištěn rychlý přísun betonové směsi do bednění a bylo možné posun bednění urychlit.
Vyztužovaní – postup
Jedná se o vodonepropustnou konstrukci, snahou bylo navrhnout výztuž ve vzdálenosti maximálně do 150 mm.Délky běžné svislé výztuže Ø 16 mm bylo nutné navrhnout maximálně 4,0 m tak, aby nevznikly problémy s osazováním prutů svislé výztuže, styky svislé výztuže byly pravidelně prostřídány po výšce stěny. Vnitřní a vnější vodorovná výztuž Ø 16 mm byla osazována po spirálách při povrchu stěny s krytím c = 40 mm.
Umístění, fixace polohy plášťových trubek pro kabely
Při tažení stěny byly osazovány plastové kanálky o průměru 65/70 mm spolu s předpínacími kotvami, které byly osazovány do ostění předpínacích žeber. Osy kabelových kanálků byly umístěny ve vzdálenosti 350 mm od vnitřního povrchu válcové stěny.Pro fixaci polohy plášťových kanálků byly osazovány svařované žebříčky, které se skládaly ze svislé výztuže a vodorovných příčlí Ø 8 mm pro osazení plášťových trubek.
Způsob hutnění betonové směsi, úprava povrchů
Betonová směs je hutněná pomocí ponorných vibrátorů.Oba povrchy stěny, které vystupují na spodní straně z posuvného bednění, jsou zapraveny ze zavěšených lávek pod posuvným bedněním a opatřeny ochranným nátěrem, jenž zabraňuje odpařování záměsové vody.
Betonáž stropní konstrukce, sledování pevnosti pro předpínání
Podle požadavku dodavatele předpínacího systému musí být minimální krychelná pevnost při zahájení předpínání 35 MPa.Krychelná pevnost betonu byla průběžně kontrolována pomocí Schmidtova odrazového tvrdoměru.
Postup předpínání
Pro dodatečné předpínání byl použit předpínací systém za spolupráce firmy VSL. Byly navrženy sedmilanové kabely, předpínací lana typ 1860 S7-15,7.Napínání probíhalo současně 2 napínacími zařízeními shora dolů. V první části byly v jednotlivých etapách napínány kabely na 50 % napínací síly, následně byly dopnuty na 100% napínací síly.



















